Dream homes realized

Welcome to Titanbarndominums.com, where we transform your vision into reality. Explore our unique approach to building custom cabins, barndominiums, and complete homes. Let us bring your dream home to life with quality craftsmanship and exceptional service. Start your journey with us today.

Information

At Titan Homes we specialize in crafting custom homes, barndominiums, and cabins that reflect your unique style and needs. Located in Southern Indiana, we pride ourselves on quality craftsmanship and attention to detail. Discover how we can turn your dream home into a reality.

CONTAINER HOMES 

Starting at $99,000 

Turn around times for Container homes typically runs 3 to 6 months after permits are pulled and ground work finished  to be move.in ready , Depending on the style and size.of the home.  

Our services

We offer comprehensive carpentry services to build custom cabins, barndominiums, and complete homes. From initial design to final construction, our team ensures every detail meets your expectations. Explore our services and let us create the perfect living space for you.

Choose from a variety of siding options 

Faux stone , siding , brick , log, metal or t-111 wood siding

Roofing metal , shingles or rolled roofing 

We are HOA complaint. 

Custom builds 

Bring us your ideas , your plans or.blue prints and we'll put a price together. 

 

 

* WHATS THE DIFFERENCE?*

A shell construction home or cabin  is just that a shell its framed and under roof no finshes to it ,

With a shell home or cabin you can do add ons. 

A turn key or move in ready house,cabin is 100% complete from foundation, roof , drywall, electrical, hvac its ready to just move in .. 

 

 

* WHO pulls the permits ? 

Titan barndominiums pulls all the permits for its customers ,We make this as smooth as possible with less stress so you and focus on other things and lets us do the job effectively.  

Homes & Barndominums Available 

We have more not listed 

The Texas $325,889 move in ready 

$199,889 framed in shell

3200 sqft fully customizable 

Financing available through TITAN HOMES. 

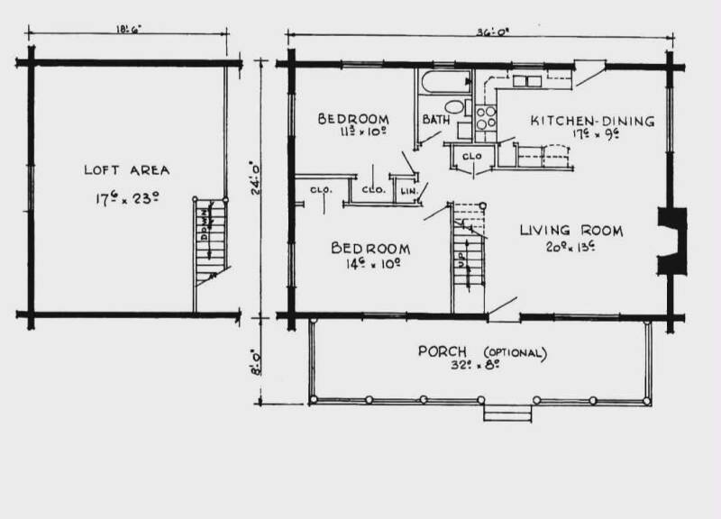
LOG CABIN HOME shell kit logs 1266  sq.ft 36' x 24' with loft and porch 


$82,000  


This kit includes: gables,  ridge beam and perlins, log shell ( outer walls), flore joists, rafters, metal roofing.

 The buyer is responsible to meet the building permits and the requirements in you state-county. So please check at your county permit office to found out what is allowed.


It comes with Swedish cope 9" logs ( 12" optional. D log optional),  gables, ridge beam and purlins log shell ( outer walls), flore joists, rafters, metal roofing, lumber staircase . 

 3 cases of glue

21/2 boxes 11” screws

Optional: (2) 14’ x12” round staircase logs w/12x10” steps, and10” ½ log steps (12x3’ long)

*Bungalow cabin 

2 story 2 or 3 bedroom 1 and 1/2 bath 

$99,000 shell 

$189,300 move in ready 

 

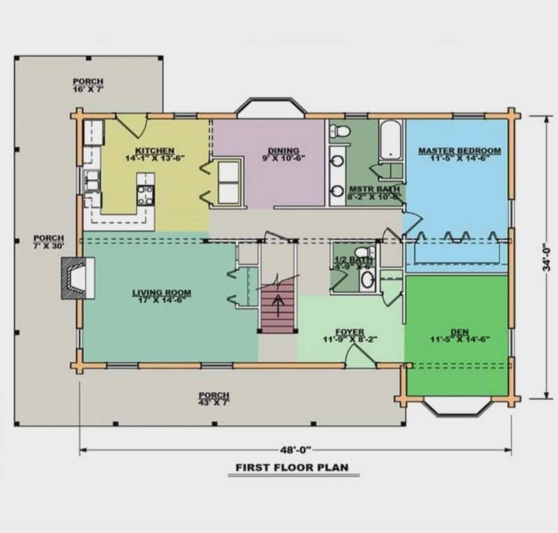
The Barndo plus

Fully customizable  2000 sqft or 3500 sqft 

Prices starting at $145,000 

 

Custom-designed cabins and homes tailored to your specific needs and preferences, perfect for a cozy retreat.

Financed through TITAN HOMES. 

Barndominums & Pole barns 

Spacious and versatile barndominium designs, blending rustic charm with modern functionality.

The Kentucky 

1756 sqft were elegance meets cowboy 

3 large bed rooms ,XL great room , private masters retreat 2 baths , spacious kitchen for all those holiday get together 2 car garage and the perfect summer deck .

Listed at $166,825 this homes.priced to sell 

Home can be built on footers , block foundation or concrete slad 

Ask about the basement option . 

 

 

Welcome Home to the Arizona Ridgeline 

2000 sqft of architecture masterpiece 

This.home offers plenty of room for families of all sizes 

The Arizona Ridgeline offers spacious rooms throughout 

 With a design straight from the wild west 

Priced at. $188,900 on standard foundation or 

$255,888 with a full basement  

 

Complete homes

Fully custom home construction, ensuring every detail matches your vision for the perfect living space.

Our mission is to make your dreams a reality without the stress .

Carpentry

Expert carpentry services for all your building needs, from framing to finishing touches, ensuring quality and precision.

 

EXCUVATION and Land clearing $100 per.hour . 

First 3 hours free.  

Septic tank and fill tanks where applicable 

Block foundations, footers and slads 

Starting at $5000

"Titanbarndominums.com built our dream barndominium! The quality and craftsmanship exceeded our expectations. We highly recommend them!"

Sarah & Mark Johnson

Nashville Tennessee 

"We love our new cabin built by Titanbarndominums.com. It's the perfect getaway, and the attention to detail is incredible. Thank you!"

Emily & David Brown

Camden South Carolina 

"From design to completion, Titanbarndominums.com made the process of building our home seamless. Their professionalism and expertise are unmatched."

Jessica & Michael Smith

Fayetteville Georgia 

Ask about Our No credit check , No interest  Loans 

Wr pride ourselves on helping our customers get the Cabin,Home  pole barn or garage they want and need at a price they  can afford with a down payment and small affordable monthly payments.  

 

We don't care about your credit and we'll NEVER ask to pull your credit ... 

If you decide to build with Titan credit you'll sign a loan agreement and make monthly payments without interest.  

Contact us

Location

Corydon, Indiana, United States